FlexBeam LED-Support
In Anbau und Portalen
Unsere Antwort auf die stetig wachsenden Ansprüche hinsichtlich der sturmsicheren Anbindung von LED-Screens im fliegenden Bau. Universell einsetzbar, egal ob Towerbühne oder Sonderbau.
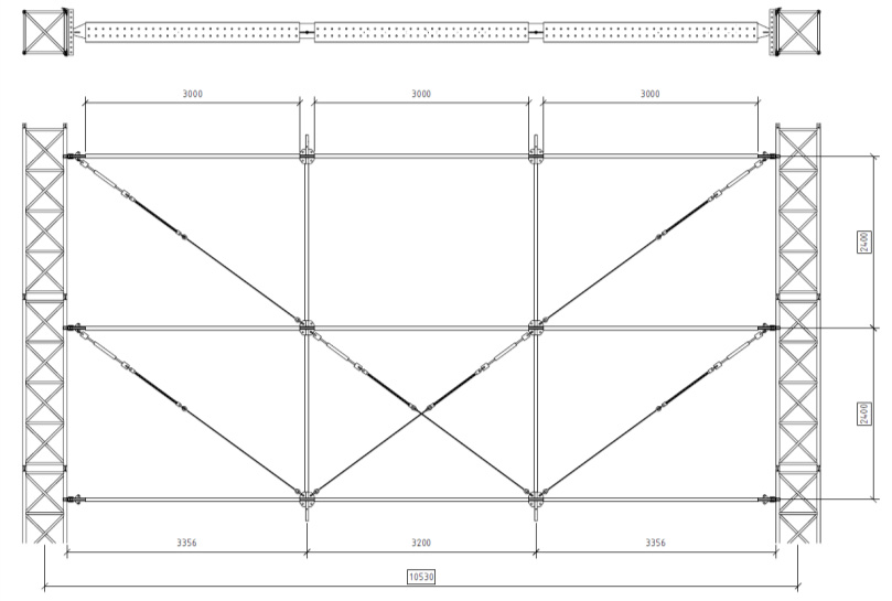
Für LED-Screens im Wing bietet das auf dem Layher Aluminiumträger „FlexBeam“ basierende Design optimale Flexibilität für alle Größen und Formate. Die einzelnen, horizontalen FlexBeam-Achsen können vertikale zwischen den Bühnentowern verschoben werden und werden je nach Anforderungen aus lokaler Windzone und Screen-Größe verteilt.
Die steckbaren Einzelteile sind leicht zu handhaben und lassen sich schnell mit geringem Personalaufwand montieren. Die Anschlussplatten zur vertikalen Unterkonstruktion lassen sich bereits auf dem Boden ausrichten und werden mit der gesamten Konstruktion bereits beim Errichten des Bühnendaches direkt auf Position gehoben.
Die leichte Aluminiumkonstruktion bietet eine 280mm breite Aufstandsfläche und ermöglicht so die rückseitige Wartung der LED-Module. Entlang der horizontalen Achsen gespannte Life-Lines sorgen für die nötige Absicherung.
Ihre Vorteile im Überblick:
Kompatibel mit allen MEGAFORCE Towerbühnen
Alle MEGAFORCE Towerbühnen können auf Anfrage mit dem FlexBeam LED-Support ausgestattet werden. Somit garantieren wir eine praktikable Lösung für Bühnensysteme aller Größen.
Minimaler Einfluss auf Werbeprints oder Artwork
Die filigrane Konstruktion aus 50mm hohen Aluminiumprofilen hat keinen bis wenig Einfluss auf Werbeprints oder Artwork und eignet sich daher auch für den Einsatz vor detailreichen Print-Flächen mit hohem Anspruch.
Banner im Sturmfall leicht zu entfernen
Selbst bei fest montierten LED-Screens sind, zur Entlastung des Bauwerks, alle Banner im Sturmfall leicht zu entfernen. Das gilt auch für den Fall, dass die Bannerebene zwischen Support und LED-Screen verläuft.
Rückseitiger Zugang zu den LED-Modulen inkl. Lifeline
Die LED-Module bleiben zu jeder Zeit von hinten zugänglich. Horizontal gespannte Life-Lines entlang der FlexBeam Achsen ermöglichen einen einfachen und sicheren Zugang.
Weiterbetrieb der LED-Screens
Der durchgehende Betrieb der LED-Leinwände ermöglicht die Einbindung in Evakuierungskonzepte und ermöglicht zusätzliche Hinweise an das Publikum.
Kompatibel mit allen LED-Systemen
Unabhängig vom Herstelle unterstützt das System alle Formen von vertikaler Unterkonstruktionen, egal ob 2-, 3- , 4-Punkt Traversen oder einfache Gerüstrohre. Die Übergabepunkte sind in einer horizontalen Nut geführt und nahezu beliebig verschieblich.






