Video- und LED Portale
Video-und LED-Portale sind mit LED- oder Videotechnik ausgestattete Portale, die Videomaterial zeigen. Für Konzertübertragungen, Public Viewings oder bei Firmenevents, Video- und LED-Portale sind ein zentraler Bestandteil für nahezu jedes Event. Dabei können Video- und LED-Portale von Megaforce in vielen verschiedenen Größen für die unterschiedlichsten Einsatzgebiete gefertigt werden. Video- und LED-Portale können von Megaforce auch verkleidet und gebrandet werden. Hier sind der Kreativität keine Grenzen gesetzt.
Video-und LED-Gerüststühle
Video-und LED-Gerüststühle bezeichnen eine Plattform, auf die eine LED-bzw. Videowand aufgesetzt werden kann. Durch das Anbringen an einer „Lehne“, wird die Stabilität gewährleistet. Megaforce fertigt individuelle Video- und LED-Gerüststühle in verschiedenen Größen, ganz nach Ihren Wünschen.
Abmessungen
je nach Bedarf
The Show must go on! Trotz der Krise können wir mit unserer eigenen Produktserie für den Bau von temporären Autokinos einen Teil des Showsommers retten und für euch auf die Leinwand bringen. Rock’n’Roll Cinema by Megaforce.
Mit der eigenen Fertigung und dem großen Materialpool können wir spontan reagieren und schon morgen Ihre Idee zum eigenen Autokino real werden lassen.
Durch unsere Langjährige Erfahrung mit Gerüststühlen und Traversenkonstruktionen zur Aufnahme großer LED-Wände können wir für praktisch alle erdenklichen Baugrößen eine statisch sichere und abnahmefähige Bauvariante anbieten.
Große Windangriffsflächen bei Tragwerken für Kino- und LED Wänden erfordern spezielles Fachwissen, Erfahrung und Materialkenntnis. All das können wir liefern, alles aus einer Hand, alles made by Megaforce.
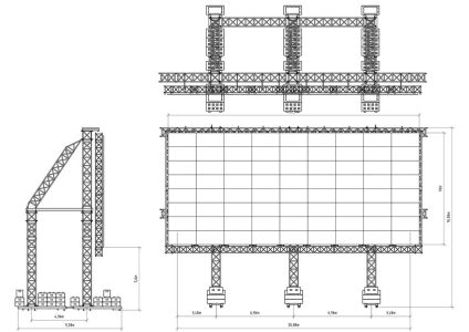
Traversenkonstruktionen
Für fest installierte Großleinwände, die auch im Sturmfall nicht abgenommen werden müssen bieten wir extrem tragfähige Traversenkonstruktionen an.
Die große Autokino Leinwand in Karlsruhe steht auf einer Megaforce Traversenkonstruktion die auf dem Material unserer größten Towerbühne basiert. Die 24x10m große Projektionsfläche aus Schichtholzplatten kann dank der extrem belastbaren T82 Traversen auch bei starkem Wind permanent im Bauwerk bleiben. Die ideale Lösung für lange Standzeiten und schlechte Wetterlagen.
Dank dem Inhouse Engineering und langjähriger Erfahrung mit Materialien, Statik und behördlichen Abnahmen können wir spontan reagieren und für praktisch alle Situationen ein maßgefertigtes und abnahmefähiges Produkt kreieren.
Traversenkonstruktionen können frei nach Kundenwunsch in verschiedensten Dimensionen gebaut werden. Weitere Informationen und Beispiele für Bauvarianten finden Sie in den technischen Zeichnungen am Ende dieses Artikels.
Gerüstkonstruktionen
Der Layher Gerüststuhl ist bei Großveranstaltungen die klassische Lösung zur Aufnahme von LED-Wänden. Video-und LED-Gerüststühle bezeichnen eine Plattform, auf die eine LED-bzw. Videowand aufgesetzt werden kann. Durch das Anbringen an einer „Lehne“, wird die Stabilität gewährleistet.
Megaforce fertigt individuelle Video- und LED-Gerüststühle ganz nach Ihren Wünschen und angepasst an die Gegebenheiten vor Ort. Das System ist längst erprobt und der Aufbau ist eingespielt. Die Konstruktion kann praktisch in allen Baugrößen angeboten werden und bietet verschiedene Aufnahmemöglichkeiten für LED-Wände oder sonstige Projektionsflächen.
Weitere Informationen und Beispiele für Bauvarianten finden Sie in den technischen Zeichnungen am Ende dieses Artikels.
Projektionstower
Für jede Leinwand bieten wir eine Individuelle Lösung zur Unterbringung der Projektoren. Die Projektionstower können auf verschiedene Höhen und Distanzen zur Leinwand angepasst werden und wahlweise mit Überdachung gebaut werden.
Weitere Informationen und Beispiele für Bauvarianten finden Sie in den technischen Zeichnungen am Ende dieses Artikels.





















